< img height="1" width="1" style="display:none" src="https://www.facebook.com/tr?id=1108814164100839&ev=PageView&noscript=1" />

顆粒料稱重打包機 顆粒自動稱重打包機

2017-03-28 08:55:58 glzon
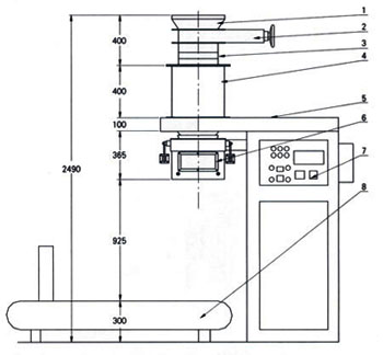
適用范圍:結構圖:
尿素、復肥、塑料粒子、泡塑材料、礦砂、糧食、聚丙烯等各種顆粒物料的袋包裝生產線。
化工灌裝機,200L灌裝機,涂料油漆灌裝機,潤滑油灌裝機
特點:
 重力式給料,大小弧門控制
 任意調整包裝重量
 占有空間小 
 全電腦控制,空中量自動調節
 自動計數,可考核各班產量
 帶有標準通訊接口,可與中央控制系統聯網
技術參數:
稱重范圍20-50kg稱重速度>300包/小時稱重允差單包<±100g、10包平均<±50g電源AC220V50Hz功率1KW氣源壓力0.4-0.6MPa耗氣量0.3m3/min
DCS-50/A4型

1.進料口2.閘板閥3.觀察口4.控制器5.平臺6.夾袋式電子秤7.電控柜8.輸送縫包系統

上海廣志儀器廠家制造銷售;

廠家交流熱線:021-60518387,手機:13701933542

聯系我們,我們將為您解決行業中所遇見困難!

上海廣志自動化設備是專業生產自動灌裝機的廠家,歡迎廣大客戶前來咨詢,電話021-60518382

久久青青草原国产精品免费